Neu sanierte 120 m² Bürofläche am Schillerpark! Tiefgarage!

Auf einen Blick

Obergruppe:

Büros / Miete

Adresse:

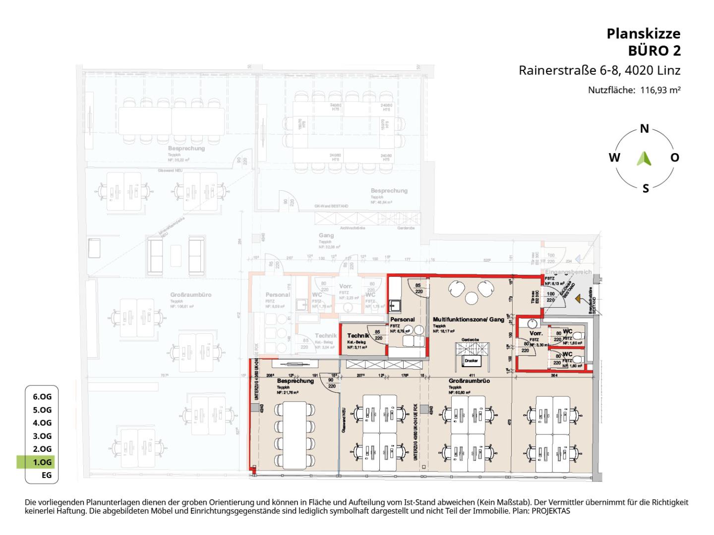
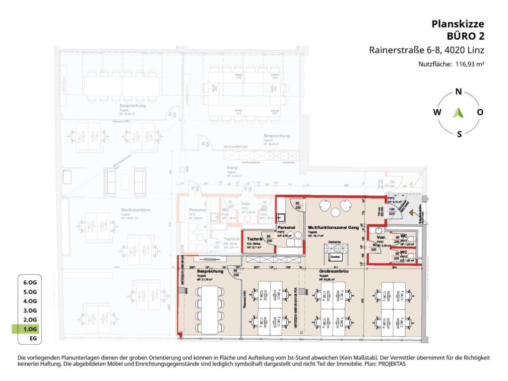
Rainerstraße 6, AT 4020 Linz

Stock/Top:

/B1

Nähe:

Casino Linz, Landstraße, Hotel, Schillerplatz

Objektnummer:

2713/8549

Kategorie:
Büros

Nutzfläche:
ca. 116,93 m²

Nettomiete / m2:
€ 14,00

Nettogesamtmiete:
€ 2.063,79

Nettobetriebskosten:
€ 426,79

PARKPLÄTZE - KLIMA - LIFT - BAHNHOF

QUICKFACTS
Nutzfläche: Büro 1 mit ca. 116,93 m² und Büro 2 mit ca. 239,91 m² oder gesamt ca. 356,84 m²
Stockwerk: Zwischengeschoss mit Lift
Parkplätze: hauseigene Tiefgarage
Nettomiete / m²: ab € 14,00
Bezugstermin: nach Vereinbarung

OBJEKTBESCHREIBUNG
Dieses klimatisierte Büroobjekt im Zwischengeschoss eines Bürogebäudes bietet einen attraktiven Standort für verschiedenste Unternehmen.
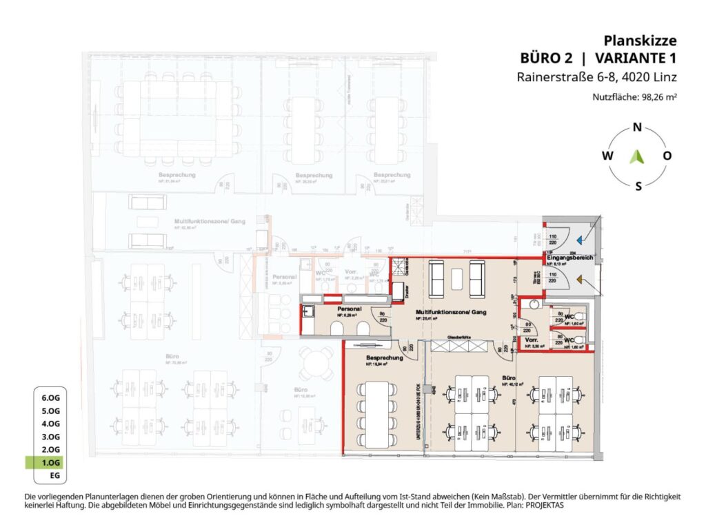
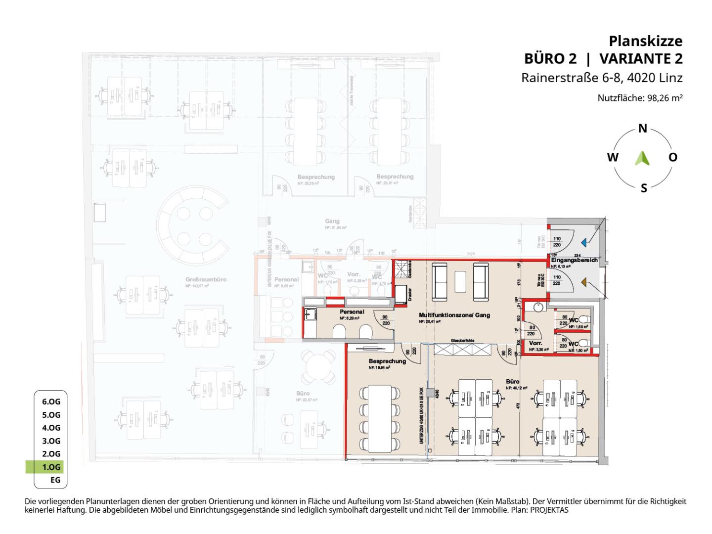
Grundrissvarianten mit ca. 117 m² (6-8 Personen), ca. 240 m² (15 Personen) oder ca. 360 m² (20 Personen) können noch mitgeplant werden.

LAGE & VERKEHRSANBINDUNG
Durch die Nähe zur Shoppingmeile Landstraße ist dieses Mietobjekt perfekt mit der Straßenbahn erreichbar. Es besteht die Möglichkeit in der hauseigenen Tiefgarage Parkplätze um € 125,00 netto zzgl. Betriebskosten anzumieten. Parkmöglichkeiten für Kunden befinden sich in der umliegenden Kurzparkzone und öffentlichen Parkgaragen.

AUSSTATTUNG
Zustand: gut
Boden: Parkett oder Teppich
Decke: abgehängt
Klima: zentral
Fenster: öffenbar
Sonnenschutz: innen
Teeküche: vorhanden
Lift: vorhanden
Beleuchtung: teilweise vorhanden

KONDITIONEN (NETTO)
Miete: ab € 14,00 / m² / Monat
Betriebskosten: € 3,65 / m² / Monat
Heizungskosten: nach Verbrauch
Strom: nach Verbrauch
Befristung: nach Vereinbarung
Kaution: 3 - 6 BMM
Provision: 3 BMM

Zögern Sie nicht uns bei etwaigen Rückfragen oder zur Vereinbarung eines unverbindlichen Besichtigungs- bzw. Beratungstermines zu kontaktieren. Unser Team steht Ihnen gerne zur Verfügung! Ihr Ansprechpartner: Herr Claudio Feistritzer (0664 / 12 88 000 bzw. 0732 / 77 0 88 5-22)

PS: Zahlreiche weitere Immobilien finden Sie auf unserer Homepage unter www.projektas.at
Hinweis: Wir verarbeiten personenbezogene Daten zu geschäftlichen Zwecken. Nähere Informationen finden Sie unter www.projektas.at

Mehr lesen

Daten & Fakten

  • Baujahr:ca. 1991
  • Nutzfläche:ca. 116,93 m²
  • Lift:vorhanden
  • Heizung:Zentralheizung mit Fernwärme
  • HWB:49.91 kWh(m2a)
  • Klasse HWB:B

Konditionen

  • Miete netto:€ 1.637,00
  • USt. Miete:€ 327,40
  • Miete brutto:€ 1.964,40
  • Betriebskosten netto:€ 426,79
  • Nebenkosten gesamt netto:€ 426,79
  • USt. Betriebskosten:€ 85,36
  • Betriebskosten brutto:€ 512,15
  • Gesamtmiete brutto:€ 2.476,55
  • Kaution:€ 8.000,00

Weitere Details

  • Lage: Stadtzentrum
  • Ausstattung: Teeküche, Klimaanlage Zentral, Abgehängte Decke, Öffenbare Fenster, Bodenbelag: Parkett, Sonnenschutz aussen
  • Öffentliche Anbindung: Strassenbahn, Bus

Sie sehen gerade einen Platzhalterinhalt von Google Maps. Um auf den eigentlichen Inhalt zuzugreifen, klicken Sie auf die Schaltfläche unten. Bitte beachten Sie, dass dabei Daten an Drittanbieter weitergegeben werden.

Mehr Informationen
Neugierig?

Vereinbaren Sie gleich einen Termin mit den zuständigen Betreuern oder fordern Sie weitere Informationen an!
Wir freuen uns, Sie beraten zu dürfen!