MODERN - FLEXIBEL - HOCHWERTIG - NACHHALTIG
QUICKFACTS
Bürofläche: ca. 3.265 m²
Stockwerk: 4. OG + 5. OG + 6. OG
Nutzfläche gesamt: ca. 18.000 m² (ca. 2/3 bereits an globales Unternehmen mit AAA-Rating vermietet)
Raumaufteilung: individuell gestaltbar
Parkplätze: Tiefgaragenparkplätze anmietbar
Nettomiete / m²: ab € 16,00
Bezugstermin: nach Vereinbarung
OBJEKTBESCHREIBUNG
Das Hafenportal Projekt ist der perfekte Ankerplatz für zukunftsorientierte Unternehmen welche einen hochwertigen Standort suchen. Die Umsetzung des über 18.000 m² großen Gewerbeensembles mit Geschäftsflächen im Erdgeschoss und Büroeinheiten in den 6 Obergeschossen schreitet rasch voran und die Fertigstellung des Gebäudes wurde bereits abgeschlossen. Der flexible Grundriss erlaubt dem zukünftigen Mieter die Fläche individuell zu gestalten und die Raumaufteilung zu konfigurieren.
Das Grundausstattungspaket beinhaltet einen belagsfertigen Doppelboden, ein integriertes Heiz- und Kühlsystem in der Decke, teilweise öffenbare Fenster sowie zusätzliche Lüftung über Bodeninduktivauslässe für optimale Frischluftversorgung, elektrische Raffstores außen sowie eine effiziente LED Grundbeleuchtung. Zukünftigen Mietern ermöglicht diese hervorragende Grundstruktur Büros nach besten Standards auszustatten.
Folgende Büroflächen sind im Bauteil C noch verfügbar:
Stockwerk Bürofläche (zzgl. Nebenflächen)
1. Obergeschoss bereits vermietet
2. Obergeschoss bereits vermietet
3. Obergeschoss bereits vermietet
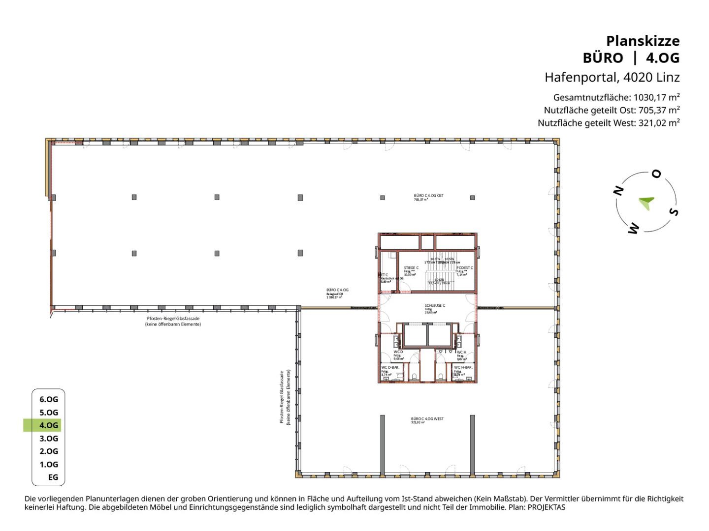
4. Obergeschoss ca. 1.030 m²
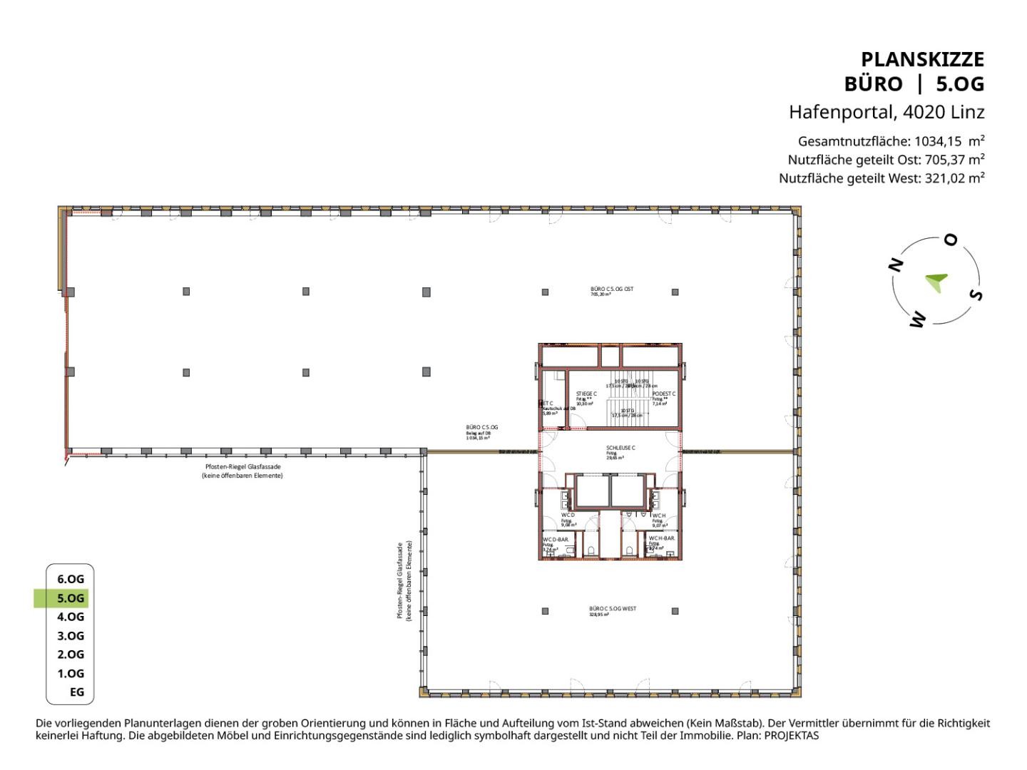
5. Obergeschoss ca. 1.035 m²
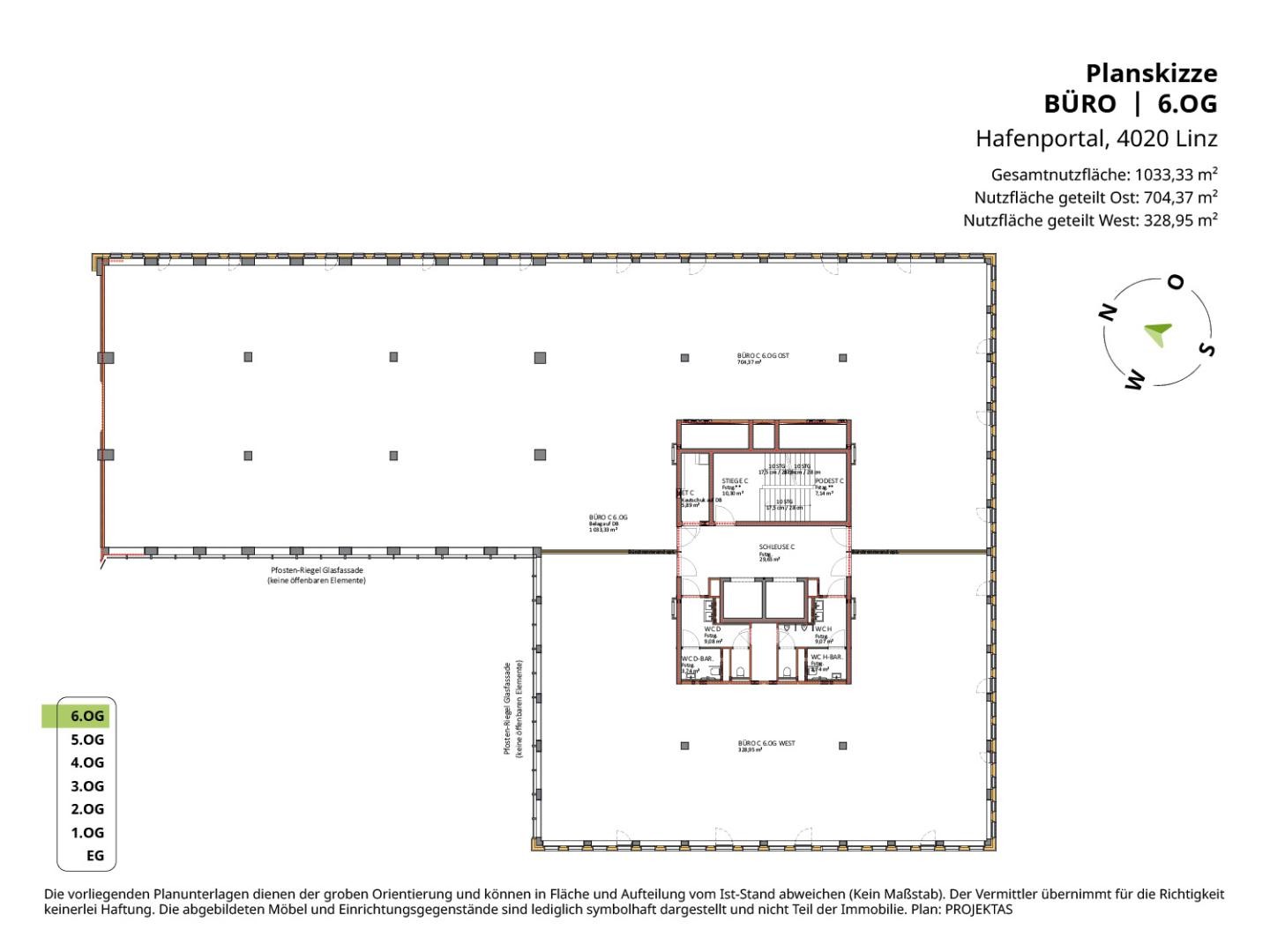
6. Obergeschoss ca. 1.034 m²
Geschäftsflächen
Zusätzlich ist im Erdgeschoss des Bauteils B eine gut sichtbare Geschäftsfläche mit ca. 218 m² derzeit noch zu mieten.
Wir freuen uns Ihnen dieses hochwertige Projekt präsentieren zu dürfen und die passende Fläche für Ihr Unternehmen zu empfehlen.
LAGE & VERKEHRSANBINDUNG
Das Hafenportal liegt an der Industriezeile/Regensburgerstrasse im Linzer Handelshafen mit rascher Anbindung an die Stadtautobahn A7 (Anschluss Hafenstrasse oder Prinz-Eugen-Straße) und in der Folge der A1. Die im Gebäude integrierte Bushaltestelle garantiert eine ideale öffentliche Verkehrsverbindung. Eine Buslinie bietet eine schnelle Verbindung zum Hauptbahnhof in nur ca. 15 Minuten. Mit dem Fahrrad ist das Hafenportal über das gut ausgebaute Radwegnetz von Linz ebenfalls ausgezeichnet erreichbar. Parkplätze sind in der hauseigenen Tiefgarage für € 125,00 netto zzgl. Betriebskosten anmietbar. Weitere Parkhausflächen sind in unmittelbarer Nähe ebenfalls vorhanden.
AUSSTATTUNG
Zustand: Erstbezug
Fassade: Alu-Glas-Konstruktion
Boden: belagsfertiger Doppelboden
Fenster: Kunststofffenster (teilweise öffenbar)
Sonnenschutz: elektrische Raffstores außenliegend
Decke: Heiz-/Kühldecke
Beleuchtung: LED Grundbeleuchtung
Datenverkabelung: mieterseits
Zutrittssystem: elektronische Schließanlage
Heizung: Deckenheizung Fernwärme (Betonkernaktivierung)
Klima: Deckenkühlung Fernkälte (Betonkernaktivierung)
Lift: 2 pro Baukern mit 1150 kg Nutzlast (15 Personen)
Sanitäranlagen: getrennt in jedem Stockwerk
Brandmeldeanlage: vorhanden
KONDITIONEN (NETTO)
Miete: ab € 16,00 / m² / Monat
Betriebskosten: € 2,29 / m² / Monat
Parkplätze: € 125,00 zzgl. € 25,00 BK je Parkplatz
Heiz-/Kühlkosten: € 0,74 / m² / Monat
Strom: nach Verbrauch
Wasser: nach Verbrauch
Befristung: nach Vereinbarung ab 5 Jahre
Kaution: 3 - 6 BMM
Provision: 3 BMM
Zögern Sie nicht uns bei etwaigen Rückfragen oder zur Vereinbarung eines unverbindlichen Besichtigungs- bzw. Beratungstermines zu kontaktieren. Unser Team steht Ihnen gerne zur Verfügung! Ihr Ansprechpartner: Herr Claudio Feistritzer (0664 / 12 88 000 bzw. 0732 / 77 0 88 5-22)
PS: Zahlreiche weitere Immobilien finden Sie auf unserer Homepage unter www.projektas.at
Hinweis: Wir verarbeiten personenbezogene Daten zu geschäftlichen Zwecken. Nähere Informationen finden Sie unter www.projektas.at