Außergewöhnliches 4-Zimmer Penthouse mit großem Balkon in Puchenau!

Auf einen Blick

Obergruppe:

Wohnungen / Miete

Adresse:

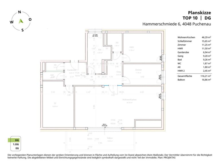
Hammerschmiede 6, 4048 Puchenau (Linz)

Stock/Top:

2/10

Nähe:

Donau, Sportplatz Puchenau, Ruderverein

Objektnummer:

2713/8462

Beziehbar ab:

01.10.2025

Wohnfläche:

116,21 m²

Zimmer:

4

Bad/Bäder:

1

Außenbereich:
Balkon

Beziehbar ab:
01.10.2025

Gesamtmiete:
€ 1.999,00

PENTHOUSE - NEUBAU - Wohnen mit Stil - 10 hochwertig ausgestattete Mietwohnungen in Puchenau!

Willkommen in Puchenau - einer der begehrtesten Wohnlagen am Rande von Linz. Die idyllische Gemeinde vereint auf ideale Weise naturnahes Wohnen mit städtischer Nähe. Eingebettet in die sanfte Hügellandschaft entlang der Donau, bietet Puchenau ein hohes Maß an Lebensqualität, beste Infrastruktur und eine hervorragende Anbindung an das Zentrum von Linz - sowohl mit dem Auto als auch mit der Bahn.

An der Adresse Hammerschiede 6 entsteht aktuell ein exklusives Neubauprojekt mit nur 10 Mietwohnungen. Klare Architektur, durchdachte Grundrisse und moderne Ausstattung machen dieses Wohnhaus zu einem idealen Zuhause für alle, die Komfort und Qualität schätzen. Ob Singles, Paare oder kleine Familien - hier findet jeder sein passendes Zuhause in einem stilvollen, zeitgemäßen Wohnumfeld.

Raumaufteilung der Top 10 mit ca. 116,21 m² Wohnfläche + ca. 16,86 m² Balkon:

- großzügiger Vorraum
- Tageslicht Badezimmer inkl. Wanne und Dusche
- Schlafzimmer
- Schlafzimmer 2
- Kinderzimmer/Büro
- separates WC
- Abstellraum
- Hauswirtschaftsraum
- großer Wohn-/Essbereich inkl. Küche
- südseitiger Balkon mit ca. 16,86 m²

In der Gesamtmiete ist bereits eine Akonto-Zahlung der Heizkosten eingerechnet.

Die Stromkosten werden je nach Verbrauch mit dem Versorgungsunternehmen abgerechnet.

Natürlich ist der Wohnung auch ein Kellerabteil zugeordnet.

Bei Bedarf kann auch ein überdachter PKW-Stellplatz bzw. ein Außenstellplatz für brutto monatlich € 60,- bzw. € 48,- angemietet werden.
Es besteht bei allen überdachten PKW-Abstellplätzen die Möglichkeit, eine E-Ladestation zu installieren.

Besichtigungstermine vor Ort sind ab sofort nach Terminvereinbarung möglich – wir freuen uns auf Ihren Anruf!
Unser Team steht Ihnen gerne zur Verfügung! Kontaktperson: Andreas Gillmayr +43 664 / 88 18 55 88

PS: Zahlreiche weitere Immobilien finden Sie auf unserer Homepage unter www.projektas.at
Hinweis: Wir verarbeiten personenbezogene Daten zu geschäftlichen Zwecken. Nähere Informationen finden Sie unter www.projektas.at

Mehr lesen

Daten & Fakten

  • Baujahr:2025
  • Wohnfläche:116,21 m²
  • Stockwerk:2
  • Anzahl d. Balkone:1
  • Balkonfläche:16 m²
  • Zimmer:4
  • Bäder:1
  • Lift:vorhanden
  • WC:1
  • Heizung:Zentralheizung mit Wärmepumpe
  • HWB:33.4 kWh(m2a)
  • Klasse HWB:B

Konditionen

  • Miete netto:€ 1.434,84
  • USt. Miete:€ 143,48
  • Betriebskosten netto:€ 255,66
  • Heizkosten netto:€ 116,21
  • USt. Betriebskosten:€ 48,81
  • Gesamtmiete brutto:€ 1.999,00
  • Kaution:€ 6.000,00

Weitere Details

  • Klimaanlage: Individuell
  • Lage: Stadtrand, Grünlage, Sonnige Lage
  • Bauweise / Nutzung: Barrierefrei, Energietyp: Niedrigstenergiehaus, Neubau
  • Ausstattung: Geschirrspüler, Glaskeramikfeld, Sonnenschutz, Gegensprechanlage
  • Öffentliche Anbindung: Eisenbahn, Bus

Sie sehen gerade einen Platzhalterinhalt von Google Maps. Um auf den eigentlichen Inhalt zuzugreifen, klicken Sie auf die Schaltfläche unten. Bitte beachten Sie, dass dabei Daten an Drittanbieter weitergegeben werden.

Mehr Informationen
Neugierig?

Vereinbaren Sie gleich einen Termin mit den zuständigen Betreuern oder fordern Sie weitere Informationen an!
Wir freuen uns, Sie beraten zu dürfen!